Proyectos de reformas e interiorismo
Proyecto de reforma de Piso en Potes
Ubicado en el centro del casco urbano de Potes, este piso se concibe como un refugio de descanso para una pareja que buscaba crear un oasis dentro del propio centro del pueblo. La vivienda se organiza a partir de una clara diferenciación entre la zona de día y la zona de noche.
La zona social se plantea como un espacio continuo y abierto que integra salón, comedor, biblioteca y cocina. Esta última puede independizarse mediante una puerta metálica corredera que permite abrir o cerrar la cocina según las necesidades de uso, aportando flexibilidad al conjunto.
La zona de noche se compone de una habitación de invitados con vistas a la Torre de Potes y un baño de cortesía, junto a un dormitorio principal con acceso a balcón y baño en suite. Ambos baños están resueltos con materiales, griferías y mobiliario de Porcelanosa.
El pavimento continuo Linkfloor de L’Antic Colonial recorre toda la vivienda, aportando calidez y unidad espacial. La cocina, de GamaDecor (Porcelanosa), combina frentes en blanco roto y madera con electrodomésticos en acabado negro. El mobiliario y la decoración integran un lenguaje contemporáneo con referencias rústicas, en diálogo con el carácter del lugar.
Un espacio sereno y luminoso concebido como mirador y refugio dentro del paisaje urbano de Potes.
Proyecto de reforma de Baño en Potes
Ubicado en una vivienda del pueblo de Potes, este baño nace de la necesidad de actualizar un espacio antiguo y fragmentado para transformarlo en un ambiente más sereno, luminoso y visualmente amplio. Los propietarios buscaban convertirlo en un pequeño refugio de calma dentro de la vivienda.
La intervención se plantea a partir de una paleta de materiales cálidos y continuos. Se opta por un revestimiento cerámico de gran formato en tono tierra, que aporta luz y uniformidad al espacio. Este mismo material se combina con una versión de relieve lineal que, colocado en sentido vertical y limitado a la zona de ducha y lavabo, genera un ritmo visual que acentúa la altura y contribuye a ampliar la percepción espacial. El baño completo está resuelto con materiales, griferías y mobiliario de Porcelanosa.
El conjunto se completa con un mobiliario suspendido que aligera visualmente el ambiente y favorece la continuidad del pavimento. La iluminación, combinando luz directa e indirecta, acompaña los volúmenes y potencia la sensación de calma.
El resultado es un baño contemporáneo y equilibrado que transforma el espacio en un pequeño spa doméstico.
Materiales, mobiliario y decoración: Porcelanosa Grupo, BigMat, Materiales de Construcción Zurro, Create, ZaraHome
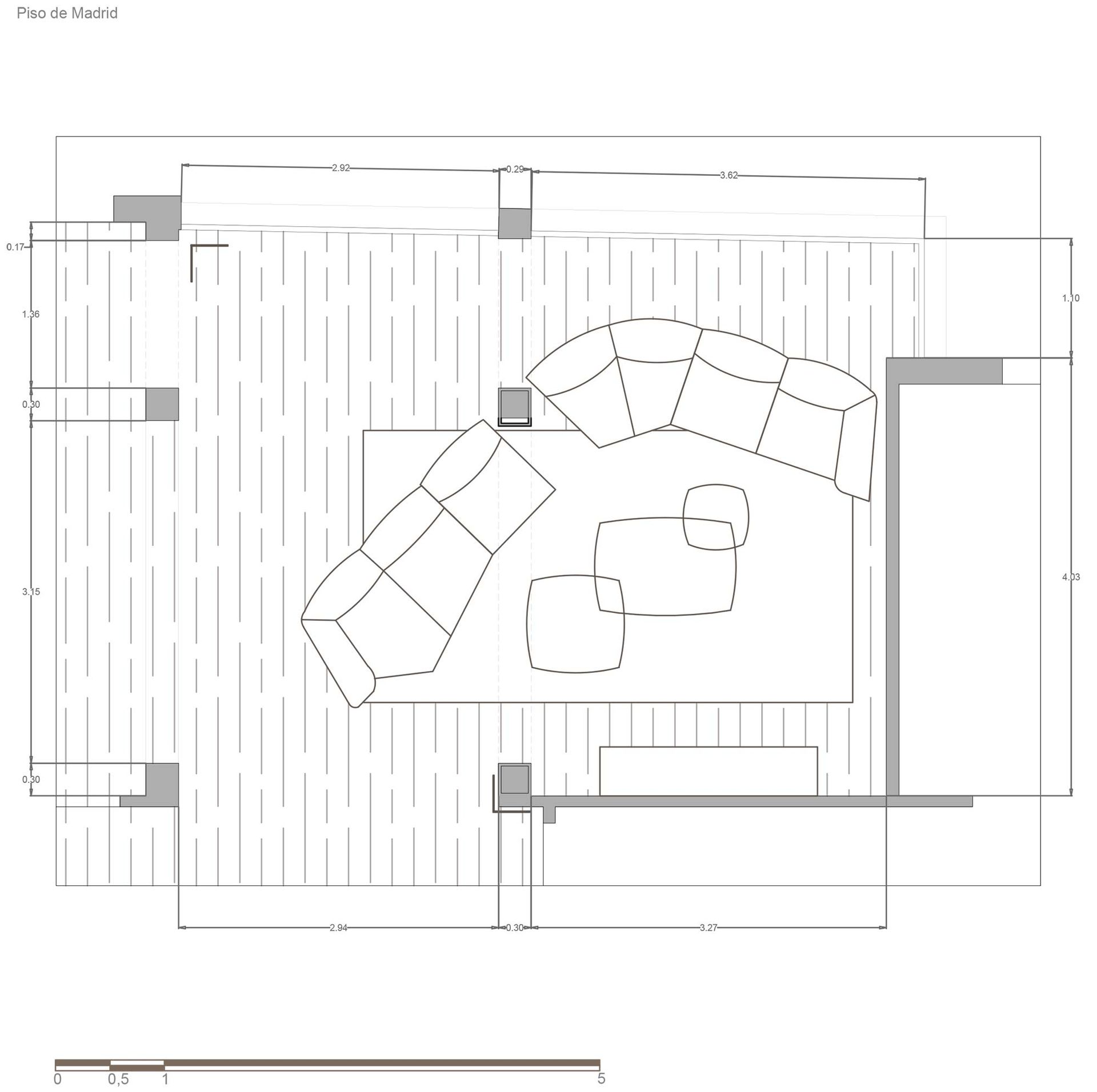
Proyecto de interiorismo de Salón en Barrio de Salamanca en Madrid
En pleno corazón del Barrio de Salamanca, en Madrid, se encuentra el antiguo salón de la vivienda de nuestro cliente, quien buscaba actualizar este espacio para adaptarlo a su estilo de vida actual. Su objetivo era crear un ambiente moderno y multifuncional, pensado tanto para disfrutar en solitario como para compartir momentos con su hija o recibir a sus amigos. Un espacio de alta calidad que reflejara, además, su personalidad sofisticada.
Para ello, se diseñó una propuesta basada en una cromática neutra, enriquecida con sutiles acentos de color presentes en las obras de arte, así como en flores y plantas que aportan vida y dinamismo al conjunto. El espacio se plantea con un concepto abierto que favorece la amplitud y la fluidez.
La presencia de un pilar estructural en el centro del salón condicionaba la distribución. Lejos de convertirse en una limitación, se transformó en una oportunidad de diseño al seleccionar un magnífico sofá de Natuzzi, cuya geometría permite rodear el pilar y abrazar visualmente todo el espacio.
Este sofá, protagonista del salón, se complementa con piezas de mobiliario de Dompaka, el papel pintado de la zona de televisión de L'Antic Colonial (Porcelanosa) y las telas de las cortinas de Aldeco. Junto con una cuidada iluminación y una selección precisa de elementos decorativos, todos estos componentes contribuyen a crear un ambiente elegante, acogedor y pensado para invitar a quedarse.
Proyecto de reforma de cafetería
Conocido como “El Encato”, está cafetería se encuentra en el pueblo de Ojedo, Cantabria. Sumérgete en la elegancia y el encanto de París con nuestra reforma en este bar-café. La visión detrás de “El Encanto” es crear un ambiente que combine la sofisticación de la cultura parisina con la calidez de un café local. Con una paleta de colores suaves en tonos pastel, muebles vintage y toques en dorado, hemos logrado un espacio que invita a los visitantes a relajarse y disfrutar de un momento especial. Las paredes están decoradas con arte local y fotografías en blanco y negro, creando una atmósfera nostálgica y acogedora. Este proyecto transforma un espacio acogedor en un refugio con clase, donde cada rincón cuenta una historia y cada detalle está diseñado para inspirar.
Reportaje fotográfico: Lucía Díaz
Proyecto de reforma de Apartamento en Santander
Próximamente…
Proyecto de reforma en Buyezo
Próximamente…
Proyecto de reforma integral de vivienda unifamiliar en Aniezo
Próximamente…



































